Tandem-Antrieb für Radialventilatoren sichert hohe Verfügbarkeit
Autor: Joachim Schürmann, Ventilatorenfabrik Oelde GmbH
Der Ventilatorenfabrik Oelde GmbH ist es gelungen, für den Betrieb von Radialventilatoren in Großanlagen eine höchstmögliche Verfügbarkeit sicherzustellen – bei geringen Investitionskosten und voller Kapazitätsauslastung.
Die Rentabilität einer Großanlage erfordert hohe Kapazitäten und – ganz wichtig – fortwährende Verfügbarkeit bei geringen Investitions- und Wartungskosten. Mit immer größeren Anlagenkomponenten wird es jedoch immer schwieriger, die Zuverlässigkeit und somit Verfügbarkeit zu gewährleisten. Insbesondere die Radialventilatoren stellen hohe technische Anforderungen an die Anlagenbauer.
Hohe Verfügbarkeit
Venti Oelde löst diese Anforderungen mit einem sogenannten Tandem-Antrieb, unter Beachtung verschiedener API-Ausführungsvorschriften (American Petroleum Institute) sowie ergänzender Kundenanforderungen. Insbesondere beim Neubau von Anlagen rechnet sich das. Immerhin kann der Produktionsausfall einer Großanlage täglich mit mehreren hunderttausend Euro zu Buche schlagen.
Eine Alternative wäre der parallele Betrieb von zwei Produktionslinien. Der Schaden durch den Ausfall einer Produktionslinie hielte sich durch die zweite Linie zwar in Grenzen, allerdings würden auch erhebliche Mehrkosten bei Investition, Unterhaltung und Wartung entstehen.
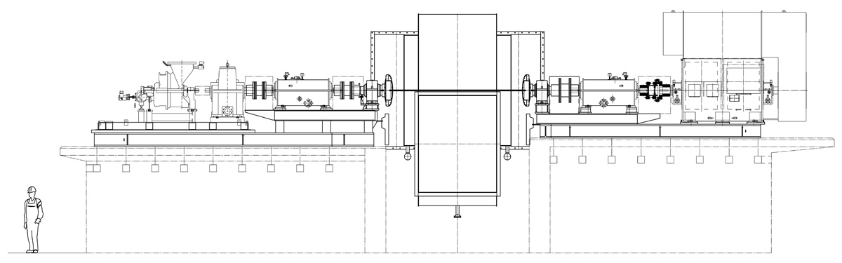
Der Tandem-Antrieb
Der Tandem-Antrieb für Radialventilatoren nutzt zwei Antriebe: einen Mittel- beziehungsweise Hochspannungsmotor und eine dampfbetriebene Turbine.
Der Mittel- beziehungsweise Hochspannungsmotor dient zum Anfahren des Radialventilators. Denn der Dampf aus den Kesselhäusern ist beim Aufstarten einer Anlage oftmals noch nicht verfügbar. Sobald ausreichend Dampf bereitgestellt werden kann, schaltet die Anlage auf die Dampfturbine um. Das ist vorteilhaft, weil Dampf in vielen Anlagen in großen Mengen zur Verfügung steht, zum Beispiel aus dem Betrieb von Wärmetauschern. Ein weiterer Vorteil: An Standorten mit wenig strapazierfähigen Spannungsnetzen stellt eine Dampfturbine als zweiter Antrieb eine willkommene Alternative dar.
Automatischer Antriebswechsel
Venti Oelde gelingt es, ohne Unterbrechung des laufenden Produktionsbetriebes automatisch von einem auf den anderen Antrieb umzuschalten. Das Umschalten vom Elektromotor auf die Dampfturbine ist dabei wenig spektakulär: Die Dampfturbine kann über die Drehzahlregelung an die Nenndrehzahl des Motors herangeführt werden. Ist eine definierte Differenzdrehzahl zwischen beiden Antrieben erreicht, übernimmt die Turbine und der Elektromotor kann abgeschaltet werden. Der Elektromotor wird dabei über den Überholfreilauf vom Wellenstrang getrennt.
Technisch anspruchsvoll ist dagegen die umgekehrte Umschaltung von Turbinenantrieb auf Elektromotor. Zwar könnten relativ einfach frequenzgeregelte Motoren für Mittel- und Hochspannung eingesetzt werden, jedoch sind diese sehr kostenintensiv. Venti Oelde nutzt daher die weitaus günstigere Variante mit direkt geschalteten Elektromotoren. Venti Oelde setzt hierfür eine besondere Kupplungskonfiguration ein, welche die Drehmomentspitzen auf ein definiertes, maximal zulässiges Drehmoment begrenzt. So können Beschädigungen des Antriebs- und Wellenstranges sicher ausgeschlossen werden.
Denn: Bei einem Trip der Dampfturbine erfährt der direkt geschaltete Elektromotor durch den lastfreien Hochlauf eine extrem hohe Beschleunigung. Zum Zeitpunkt „X“ trifft der Elektromotor den durch den Trip ausgelösten, auslaufenden Gebläserotor und beschleunigt diesen wieder auf Nenndrehzahl.
Sicherheit auf ganzer Linie
Die Ausführung der Radialventilatoren mit zwei energetisch unabhängigen Antrieben ermöglicht es Venti Oelde, den jeweils inaktiven Antrieb während des laufenden Anlagenbetriebes einer Wartung zu unterziehen. Hierfür realisiert das Unternehmen unter anderem Überholfreiläufe, die einen zuverlässigen Betrieb gewährleisten. Die zahlreichen Ausführungsvorschriften für Radialventilatoren und deren einzelne Komponenten nach Normen wie API 614, API 670, API 671 oder API 673 erfüllt Venti für Kupplungen, Ölsysteme und Maschinenüberwachung ebenso wie für Instrumentierung, Regelventile, Manometer usw.
In Theorie und Praxis bewährt
Das Ausführungskonzept von Venti Oelde bewährt sich mit sicherem, kostengünstigem Betrieb seit Jahren täglich in Großanlagen weltweit. Umfangreiche Testläufe und Simulationen unterschiedlichster Betriebszustände belegen, dass Radialventilatoren made by Venti Oelde auch die spezifischen Anforderungen der Kunden erfüllen.
| Technische Daten | |
| Betriebsvolumenstrom | 927.000 Bm³/h |
| Druckdifferenz | 8800 Pa |
| Mechanische Auslegung | 350 °C |
| Antriebe | 3300 kW |
| Drehzahl | 1192 min-1 |
Prozessbeschreibung
Ein typischer Prozess, in dem Verbrennungsluft- und Rauchgasventilatoren mit einem Tandem-Antrieb eingesetzt werden, sind die Ammoniak-, Methanol-, Wasserstoff- und Synthesegas-Anlagen. Eine Kohlenstoff-Dampf-Mischung wird dabei mit Hilfe eines Dampf-Reformers in eine Mischung aus H2, CO und CO2 und einen Rest CH4 konvertiert.
Die Gesamtreaktion im Dampf-Reformer ist stark endotherm und bedarf deshalb einer Wärmezufuhr. Die erforderliche Reaktionswärme wird durch Brenner, die in der Ofendecke zwischen den Rohrreihen angeordnet sind, bereitgestellt.
Ein Verbrennungsluftventilator muss die benötigte Verbrennungsluft an die Dampf-Reformer-Brenner liefern. Der benötigte Volumenstrom für die Verbrennungsluft kann je nach Anlagengröße schon 550.000 Bm³/h betragen.
Nach dem Verbrennungsluftventilator wird die Verbrennungsluft auf die gewünschte Temperatur mithilfe der Brenner vorgeheizt. Verbrennungsluft wird über den stöchiometrischen Bedarf hinzugefügt, um eine vollständige Verbrennung sicherzustellen. Die freigegebene Wärme wird hauptsächlich an den Prozess in den Reformer-Rohren übergeben, während die Abwärme mit dem Rauchgas bei ca. 1050 °C an einen horizontalen Wärmetauscher geleitet wird.
Die Abwärme wird in der Konvektionszone so weit wie möglich benutzt, zum Beispiel:
- zur Dampf-Erzeugung und -Überhitzung
- zur Vorwärmung der Kohlenwasserstoff-Dampf-Mischung für den Dampf-Reformer
- zur Vorwärmung und Verdampfung des Prozesskondensats
- zur Vorwärmung der Kohlenwasserstoffzufuhr
- zur Vorwärmung der Verbrennungsluft
Schließlich wird das Rauchgas durch den Kamin an die Atmosphäre durch einen Rauchgasventilator gefördert. Der Abgasstrom kann dann schon einmal 1.000.000 Bm³/h betragen.



