Große Zementlinien:
ein Prozessventilator genügt
Der Lufttechnikspezialist Venti Oelde kann die Anlagenbereiche großer Zementlinien mit nur einem einzigen leistungsstarken Radialventilator ausstatten. Gegenüber dem Betrieb mit zwei kombinierten Radialventilatoren spart der Betreiber Investitionen, Energie und Platz.
In den Komponenten großer Zementlinien mit hohen Volumenströmen bietet ein leistungsstarker Radialventilator zahlreiche technische und wirtschaftliche Vorteile gegenüber zwei parallel betriebenen Ventilatoren. Mit Venti Oelde können Planer beziehungsweise Anlagenbauer auch bei Volumenströmen von mehr als 1.000.000 m³/h auf nur einen Großventilator setzen.
Seit einigen Jahren gehen immer größere Zementlinien in Betrieb. Ofenlinien mit Kapazitäten von mehr als 10.000 Tonnen pro Tag sind keine Seltenheit mehr. Entsprechend groß müssen auch die zugehörigen Anlagenkomponenten ausgelegt sein. Typische Beispiele für diese Komponenten sind Rohmühlen- und Zementmühlenventilatoren, Ofenventilatoren für Wärmetauscher oder auch Filterventilatoren, zum Beispiel für die Kühlerabluft von Großfiltern.
Die Technologie wächst mit
Bis vor etwa fünf Jahren hätte die hohe Rotormasse großer Radialventilatoren den Einsatz kostenintensiver Gleitlager erfordert. Darum wurden in der Vergangenheit stattdessen zumeist zwei Ventilatoren im Parallelbetrieb eingesetzt.
Inzwischen sind allerdings große Wälzlagereinheiten verfügbar, die die Kosten für die Lagerung deutlich reduzieren. Sie ermöglichen nun den kostengünstigen Betrieb mit nur einem Großventilator. Die inzwischen jahrelangen guten Betriebserfahrungen bestätigen diese technische Lösung.
Gute Erfahrung mit großer Leistung
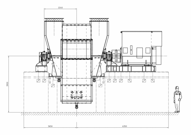
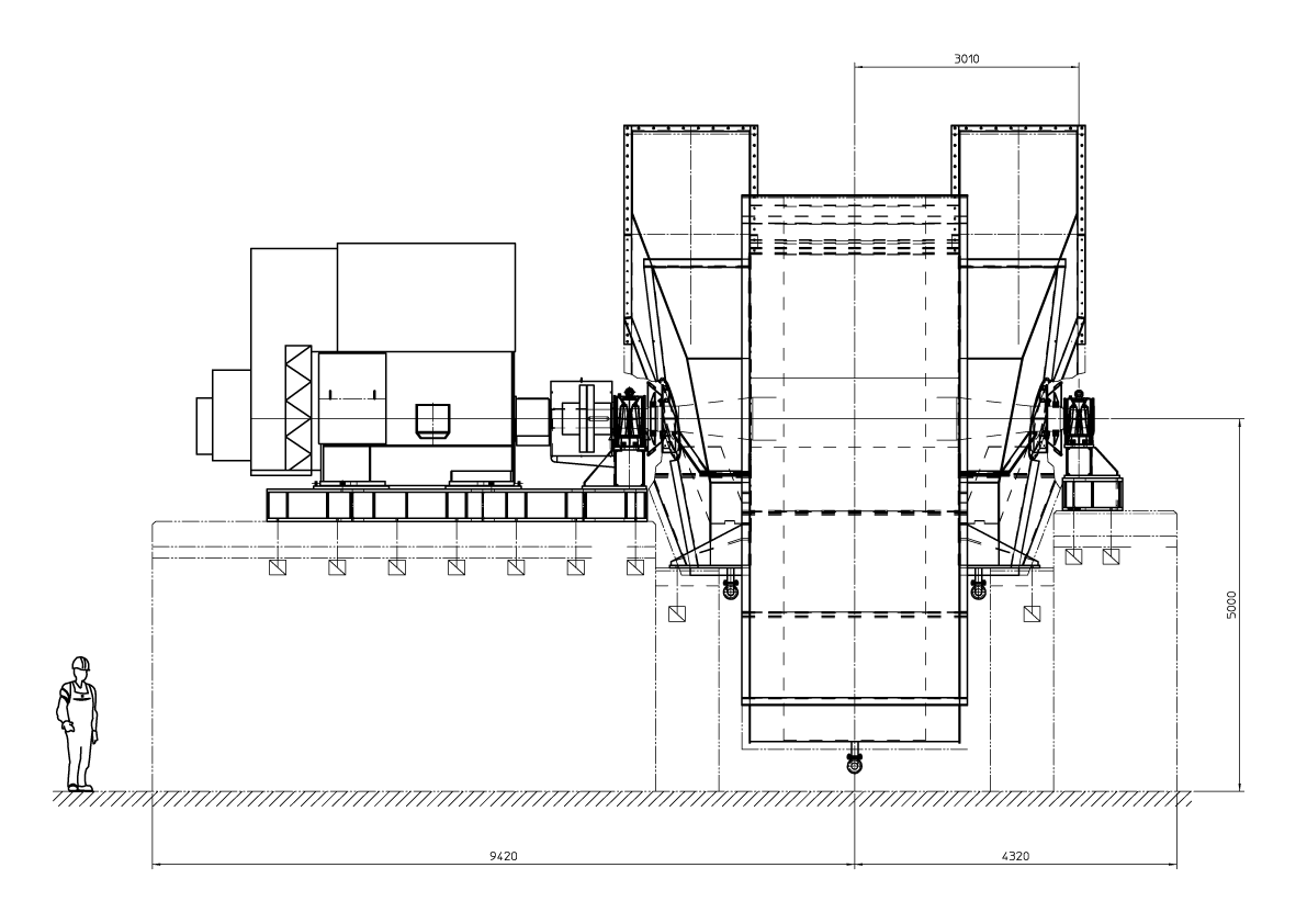
Venti Oelde setzt seine Großventilatoren bereits seit Jahren weltweit mit großem Erfolg in der Zementindustrie ein: beispielsweise Rohmühlenventilatoren mit Volumenströmen bis 1.700.000 m³/h bei einer Antriebsleistung von mehr als sieben MW. Die Zementmühlenventilatoren, Ofenventilatoren und Filterventilatoren von Venti Oelde können Volumenströmen zwischen 1.100.000 und 1.700.000 m³/h bei Antriebsleistungen von vier, fünf oder mehr MW fördern.
Im direkten Vergleich
Das Beispiel eines Rohmühlenventilators hinter Zyklon im Vergleich zu zwei kleineren Gebläsen verdeutlicht die technischen Vorteile und die Kosteneffizienz:
Die Volumenströme am Eintritt, der Staubgehalt, die statische Druckdifferenz, die Eintrittsdichte und die Eintrittstemperatur sind in beiden Fällen identisch, die Drehzahl und die Wellenleistung mit Staub sind mit nur einem Ventilator erfreulich niedriger.
| Ein Radialventilator,Typ DHRV 45S-2500/K | Zwei Radialventilatoren,Typ DHRV 45B-1800/K | |
| Volumenstrom am Eintritt | 1.593.950 m³/h | 2 x 796.975 m³/h |
| Staubgehalt | 97.549 kg/h | 97.549 kg/h |
| Statische Druckdifferenz | 12.200 Pa | 12.200 Pa |
| Eintrittsdichte | 0,903 kg/m³ | 0,903 kg/m³ |
| Eintrittstemperatur | 89 °C | 89 °C |
| Drehzahl | 750 1/min | 993 1/min |
| Wellenleistung mit Staub | 6.882 kW | 7.278 kW (2 x 3.639 kW) |
Enormes Einsparpotenzial
Im direkten Vergleich ergibt sich im vorliegenden Beispiel eine Energieeinsparung von 396 kW beziehungsweise von mehr als fünf Prozent. Aufs Jahr gerechnet belaufen sich die Einsparungen auf rund 3.300 MW. Bei einem Energiepreis von 8 Cent/kWh und 8.400 Betriebsstunden ergibt sich alle zwölf Monate eine Einsparung von rund 260.000 Euro. Zudem würden die CO₂-Emissionen erheblich reduziert, was der Umwelt dient und weiteres Einsparpotenzial bietet.
Der Einsatz nur eines großen Ventilators senkt zudem auch die Investitionskosten. Mehr als acht Prozent kann ein Betreiber im Vergleich zum Zwei-Ventilatoren-Betrieb einsparen.
Zusätzliche Vorteile
Der Einsatz eines Großventilators spart neben Kosten vor allem wertvollen Platz und reduziert die Montagezeiten. Die Synchronisation zwei parallel laufender Maschinen entfällt komplett. Zudem sind weniger Mess- und Regeltechnik sowie Schallschutzmaßnahmen vonnöten und auch Druckverluste durch zusätzliche Rohrleitungen und Kanalbogen werden vermieden. Letztlich gewährleistet die ausgereifte Technik hohe Verfügbarkeit bei geringerem Wartungsaufwand.
Der Lufttechnikspezialist Venti Oelde
Venti Oelde verfügt über jahrelange Erfahrung in der Konstruktion und Herstellung von Großventilatoren. Das Unternehmen ist für "große Lösungen" bekannt: Neben der Zementindustrie beliefert Venti unter anderem die Stahl- und Eisenindustrie, wo beispielsweise Sinter- und Pelletanlagen mit Volumenströmen bis zu drei Mio. m³/h zum Einsatz kommen.




